九游体育(NineGame Sports)官方网站-科技风向标

中環置地中心望雲售楼处│望雲(营销中心)-2025销售(售楼处)-楼盘欢迎您-价格户型地址环境配套交房时间电话-九游体育
最新资讯
您的位置: 主页 > 最新资讯 > 企业新闻

中環置地中心望雲售楼处│望雲(营销中心)-2025销售(售楼处)-楼盘欢迎您-价格户型地址环境配套交房时间电话

所属分类:企业新闻 发布时间:2025-10-27 15:58 点击量:

  您当前使用的浏览器版本过低,可能存在安全风险,建议升级浏览器,或者用以下浏览器浏览

  中環置地中心望雲售楼处│望雲 (营销中心) 官网 - 2025 销售中心 (售楼处)- 楼盘欢迎您 - 价格 / 户型 / 地址 / 环境 / 配套 / 交房时间 / 电话

  中環置地中心望雲售楼处│望雲 (营销中心) 官网 - 2025 销售中心 (售楼处)- 楼盘欢迎您 - 价格 / 户型 / 地址 / 环境 / 配套 / 交房时间 / 电话

  中環置地中心·望雲售楼处电话:【预约看房热线】中環置地中心·望雲官方售楼处电线【售楼处电话/地址】中環置地中心·望雲售楼处电话:【开发商认证】

  如有问题欢迎来电咨询,预约来电尊享购房优惠,可预约案场内部销售人员,专业一对一热情服务,让您用专业眼光去买房。

  中环南大现象级红盘建面108㎡/133㎡户型仅余少量臻席望雲东地块收官加推64席

  建面188㎡央景王座&135㎡臻席洋房本批次均价:7.37万/㎡整盘均价:6.6万/㎡

  10月25日华润以底价拿下宝山区大场镇W12-1301单元32-04、11-01地块,随着二期地块的顺利出让,标志着整个丰翔路站TOD项目中环置地中心的版图由此补全!中环置地中心望云售楼处电话:

中環置地中心望雲售楼处│望雲(营销中心)-2025销售(售楼处)-楼盘欢迎您-价格户型地址环境配套交房时间电话(图1)

  中環置地中心·望雲售楼处电话:【预约看房热线】中環置地中心·望雲官方售楼处电线【售楼处电话/地址】中環置地中心·望雲售楼处电话:【开发商认证】

  华润中环置地中心总建筑面积有望超过90万方,是宝山有史以来最高规格的大型城市综合体项目之一,将打造集高奢购物中心、甲级办公、品质住区于一体的TOD综合体!

中環置地中心望雲售楼处│望雲(营销中心)-2025销售(售楼处)-楼盘欢迎您-价格户型地址环境配套交房时间电话(图2)

  其中万象系商业体量超12万方,定位为地区级商业中心,将打造北上海城区规模最大的、品质最高的旗舰级商业中心!

中環置地中心望雲售楼处│望雲(营销中心)-2025销售(售楼处)-楼盘欢迎您-价格户型地址环境配套交房时间电话(图3)

  中環置地中心·望雲售楼处电话:【预约看房热线】中環置地中心·望雲官方售楼处电线【售楼处电话/地址】中環置地中心·望雲售楼处电话:【开发商认证】一期地块包含07-01商办用地和3幅住宅用地,目前住宅还有少量在售,商办地块已经动工;二期地块拿地当天即公示了设计方案,其中住宅部分计划25年一季度入市,目前展厅已开启接待,推建面108-188㎡地标级海派大成之作!

中環置地中心望雲售楼处│望雲(营销中心)-2025销售(售楼处)-楼盘欢迎您-价格户型地址环境配套交房时间电话(图4)

  根据设计方案显示,该地块拟建3栋17-28F高层住宅、2栋30F酒店、1栋23F综合楼以及2栋3F商业;同时地块北侧设置有空中连廊,与北侧07-01地块万象系商业连通!

  通过地块中部的一条公共通道进行分割,住宅位于西侧,商办位于东侧,住宅区域地面无车位,全人车分流;

  其中19#为两梯四户带连廊,17#为三梯六户带连廊,15#为一梯两户无连廊,规划可售住宅约334套!

中環置地中心望雲售楼处│望雲(营销中心)-2025销售(售楼处)-楼盘欢迎您-价格户型地址环境配套交房时间电话(图5)

  根据设计方案显示,该地块拟建2栋8F小高层住宅、6栋17-26F高层住宅以及若干社区配套用房;项目地面无车位,全人车分流,除5#、6#外,其余楼底层全架空,预计打造泛会所概念!

  其中7#、8#为三梯六户带连廊,2#为三梯五户带连廊,其余楼均为一梯两户无连廊,规划可售住宅约580套!

中環置地中心望雲售楼处│望雲(营销中心)-2025销售(售楼处)-楼盘欢迎您-价格户型地址环境配套交房时间电话(图6)

  中環置地中心·望雲售楼处电话:【预约看房热线】中環置地中心·望雲官方售楼处电线【售楼处电话/地址】中環置地中心·望雲售楼处电线.本批次推手信息及在售户型

  建面约188㎡央景王座&建面约135㎡臻稀洋房,黄金中环之上,封藏64席!

中環置地中心望雲售楼处│望雲(营销中心)-2025销售(售楼处)-楼盘欢迎您-价格户型地址环境配套交房时间电话(图7)

中環置地中心望雲售楼处│望雲(营销中心)-2025销售(售楼处)-楼盘欢迎您-价格户型地址环境配套交房时间电话(图8)

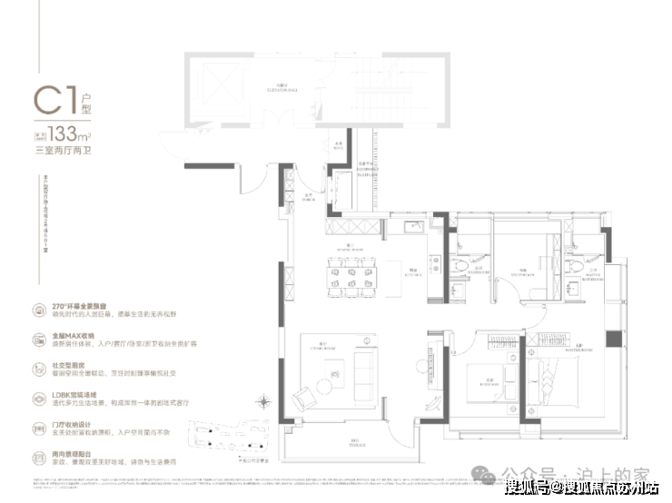
  上海中环置地中心望云营销中心热线(官方预约看房热线㎡的三房两厅两卫,总价约700万起,门槛友好,年轻家庭置业中环的不二选择。

  三开间朝南(客厅建筑面宽约3.4米)+南向双阳台+南北通透+多飘窗设计,采光视野拉满!收纳方面也做了很多改进。

中環置地中心望雲售楼处│望雲(营销中心)-2025销售(售楼处)-楼盘欢迎您-价格户型地址环境配套交房时间电话(图9)

  中環置地中心·望雲售楼处电话:【预约看房热线】中環置地中心·望雲官方售楼处电线【售楼处电话/地址】中環置地中心·望雲售楼处电话:【开发商认证】

  可抽拉的零食柜、厨房抽屉式碗碟拉篮、包括卫浴的收纳墙,于细节之处见真章。

中環置地中心望雲售楼处│望雲(营销中心)-2025销售(售楼处)-楼盘欢迎您-价格户型地址环境配套交房时间电话(图10)

中環置地中心望雲售楼处│望雲(营销中心)-2025销售(售楼处)-楼盘欢迎您-价格户型地址环境配套交房时间电话(图11)

  中環置地中心·望雲售楼处电话:【预约看房热线】中環置地中心·望雲官方售楼处电线【售楼处电话/地址】中環置地中心·望雲售楼处电话:【开发商认证】

中環置地中心望雲售楼处│望雲(营销中心)-2025销售(售楼处)-楼盘欢迎您-价格户型地址环境配套交房时间电话(图12)

中環置地中心望雲售楼处│望雲(营销中心)-2025销售(售楼处)-楼盘欢迎您-价格户型地址环境配套交房时间电话(图13)

  中環置地中心·望雲售楼处电话:【预约看房热线】中環置地中心·望雲官方售楼处电线【售楼处电话/地址】中環置地中心·望雲售楼处电线㎡的四房产品是项目的明星户型,板块内以及整个中环难得的改善型作品。

  超大尺度与超强采光面,四开间朝南+主卧270°无柱转角飘窗+灵动空间设计,豪宅基因与品质感跃然于眼前,全市改善稀缺品种。

  主卧的台盆对面都做了飘窗,从而达到了主卫和主卧都能双面采光的效果,尺度感非常夸张。

  全屋做了约6个飘窗,主卧、次卧、主卫、客卫,包括另外两个卧室,满屋飘窗户型,不仅采光视野出众,还实打实赠送了约14㎡的面积,合理利用每一寸空间!

中環置地中心望雲售楼处│望雲(营销中心)-2025销售(售楼处)-楼盘欢迎您-价格户型地址环境配套交房时间电话(图14)

  客厅建筑面宽约5.7米大开间,整体空间利用率极优秀,几乎没有过道面积的浪费。

中環置地中心望雲售楼处│望雲(营销中心)-2025销售(售楼处)-楼盘欢迎您-价格户型地址环境配套交房时间电话(图15)

  来感受下主卧270度的飘窗视野,将上海一年四季的美景搬入室内——尺度感拉到极致!

  中環置地中心·望雲售楼处电话:【预约看房热线】中環置地中心·望雲官方售楼处电线【售楼处电话/地址】中環置地中心·望雲售楼处电话:【开发商认证】

中環置地中心望雲售楼处│望雲(营销中心)-2025销售(售楼处)-楼盘欢迎您-价格户型地址环境配套交房时间电话(图16)

  主卫的镜柜,也做双面收纳设计。主卫延伸出来的创新飘窗,可以在上面摆放各种日常用品。

中環置地中心望雲售楼处│望雲(营销中心)-2025销售(售楼处)-楼盘欢迎您-价格户型地址环境配套交房时间电话(图17)

中環置地中心望雲售楼处│望雲(营销中心)-2025销售(售楼处)-楼盘欢迎您-价格户型地址环境配套交房时间电话(图18)

  中環置地中心·望雲售楼处电话:【预约看房热线】中環置地中心·望雲官方售楼处电线【售楼处电话/地址】中環置地中心·望雲售楼处电话:【开发商认证】

中環置地中心望雲售楼处│望雲(营销中心)-2025销售(售楼处)-楼盘欢迎您-价格户型地址环境配套交房时间电话(图19)

中環置地中心望雲售楼处│望雲(营销中心)-2025销售(售楼处)-楼盘欢迎您-价格户型地址环境配套交房时间电话(图20)

  厨房,采用博世(或同等品牌)的吸油烟机、灶具、洗碗机、蒸烤一体机四件套、怡口(或同等品牌)的末端净水器、摩恩(或同等品牌)的垃圾处理器都统统配备。

中環置地中心望雲售楼处│望雲(营销中心)-2025销售(售楼处)-楼盘欢迎您-价格户型地址环境配套交房时间电话(图21)

  建面约188㎡雲端平墅,雄踞社区央景中轴,以前排洋房群落的低密基底为天然画框,构筑IMAX级无界视野场域。270°环幕落地窗将景观园林盛景悉数纳藏,宽阔楼间距,惬意风景无遮挡;水景萦绕,自然盎意漫游之境;LDBK餐客社交场、全屋MAX收纳体系空间扩容,一线品牌奢装,勾勒精奢生活质感,为居者营造出奢华舒适的居住氛围。

  9#楼下架空层泛会所,植入健身空间与休息廊架,让社交与自然静谧共生。多元化架空层设计,包含学习盒子等全年龄段功能,兼具高颜值和实用性。精工造诣瑰丽大堂,给予居者更具仪式感的归家礼序。

  上海中环置地中心望云营销中心热线(官方预约看房热线层公园电梯洋房形制,为居者营造出自然亲地、花鸟比邻、四季皆景的低密公园洋房社区。建面约135㎡臻稀洋房,区别于高层住宅的局促布局,以坐北朝南的经典规制匠筑户型基底、以大面宽采光界面打破室内外界限,实现“全屋无暗角”的光影奢享;以低密规划构建纯粹居住场域,打造私密尊崇的生活边界;匠筑LDBK宽境场域、用超高得房率给予居者更高舒适度、以超越常规的楼间距尺度重构生活边界。南向宽奢景观阳台,让居者享有更大绿化空间的同时享有更丰盈的景观视野,给予生活更多的自然绿意和充足阳光。

中環置地中心望雲售楼处│望雲(营销中心)-2025销售(售楼处)-楼盘欢迎您-价格户型地址环境配套交房时间电话(图22)

  项目本次的边套设计了大量的飘窗、转角飘窗、主卧270度落地窗等设计,整个立面运用了大量的玻璃,构建出了非常极致的窗墙比。

中環置地中心望雲售楼处│望雲(营销中心)-2025销售(售楼处)-楼盘欢迎您-价格户型地址环境配套交房时间电话(图23)

  在装修标准上,除了前文提到的冰山一角之外,华润置地在石材的配置上,也不遗余力:

中環置地中心望雲售楼处│望雲(营销中心)-2025销售(售楼处)-楼盘欢迎您-价格户型地址环境配套交房时间电话(图24)

  大量的雅士白大理石、大花白岩板、皇家孔雀岩板、水纹夹丝玻璃、仿洞石岩板、卡拉卡塔白岩板等等,极尽奢华!

  社区空间和景观园林的打磨上,项目从业主生活体验出发,将海派美学彻底融入了景观之中。

  在产业导入上,南大既有行云集团、妃鱼、蓝晶科技、先导科技等一批“硬科技”产业总部基地项目,也有上海科创投、军民融合基金、上海国际创投、深创投、国泰君安、海通证券、安永、毕马威等行业领先代表组成的一批科创金融服务中心联盟机构。

中環置地中心望雲售楼处│望雲(营销中心)-2025销售(售楼处)-楼盘欢迎您-价格户型地址环境配套交房时间电话(图25)

中環置地中心望雲售楼处│望雲(营销中心)-2025销售(售楼处)-楼盘欢迎您-价格户型地址环境配套交房时间电话(图26)

  TOD开发,依托城市动脉带来的流通性,带来的是产业发展、经济提振等全方位的推动作用。

中環置地中心望雲售楼处│望雲(营销中心)-2025销售(售楼处)-楼盘欢迎您-价格户型地址环境配套交房时间电话(图27)

  作为15号线丰翔路TOD住宅,地标建筑、核心地铁站点、旗舰商业全部汇聚于周边步行范围内。

  而丰翔路TOD,除了这座足以定义北上海品质天花板的住宅之外,未来还将涵盖约150米国际化超高建筑群的TOD上盖地标级企业总部;融汇轻奢时尚、休闲生活、运动潮流等多元业态的商业;

  多维生态场景聚合之下,中环置地中心将成为新一代的网红打卡地,甚至辐射整个上海,成为真正的一站式生活聚居地。

中環置地中心望雲售楼处│望雲(营销中心)-2025销售(售楼处)-楼盘欢迎您-价格户型地址环境配套交房时间电话(图28)

  轨交能级方面,南大一枝独秀,7号线号线均已通车,穿过整个板块,未来更有多条轨交正在规划建设中。

  在商业方面,丰翔路TOD中环置地中心,已经确定引入华润【万象汇】商业,华润置地邀请了打造前滩太古里的5+Design作为设计师,打造这座与众不同的北上海商业封面。设计师利用中环置地中心独特的城市环境,从自然水系密布的走马塘绿地公园开始,将商业街区、购物中心、地标办公、轨交站点与自然公园融合。

  此外,南大路上盖,未来也将打造TOD,两大综合体加持,将大幅提升南大商业能级,并辐射周边。

中環置地中心望雲售楼处│望雲(营销中心)-2025销售(售楼处)-楼盘欢迎您-价格户型地址环境配套交房时间电话(图29)

  北侧丰翔路、西侧祁健路、东侧汇丰路已建成通车,07-01地块南侧丰皓路(祁健路-工学路)计划2024年开工建设。项目距离15号线丰翔路站步行可达,日常出行非常方便。

  教育方面:周边荟萃南大实验幼儿园、宝山区南大实验学校、上大附小、上大附中、上海大学附属学校、上海大学等全龄化教育资源。

中環置地中心望雲售楼处│望雲(营销中心)-2025销售(售楼处)-楼盘欢迎您-价格户型地址环境配套交房时间电话(图30)

  如有问题欢迎来电咨询,预约来电尊享购房优惠,可预约案场内部销售人员,专业一对一热情服务,让您用专业眼光去买房。

中環置地中心望雲售楼处│望雲(营销中心)-2025销售(售楼处)-楼盘欢迎您-价格户型地址环境配套交房时间电话(图31)

  中環置地中心·望雲售楼处电话:【售楼中心热线】中環置地中心·望雲营销中心热线中環置地中心·望雲售楼处地址400_812_3664,楼盘项目全面介绍,本电话为开发商提供线上预约售楼电话,楼盘项目全面介绍(包含楼盘简介,均价,房价,现房,期房,别墅,叠墅,大平层,价格,楼盘地址,户型图,交通规划,备案价,备案名,项目配套,样板间,开盘时间,认筹时间,楼盘详情,售楼处电话,最新消息,最新详情,周边配套,一房一价,最新进展等详情咨询)楼盘详情丨价格丨更多优惠丨机不可失丨欢迎致电丨诚邀品鉴!售楼处位置丨特价房丨工抵房丨剩余房源丨户型图丨最新消息丨免责声明:将文章内容综合来源于网络、只作分享,版权归原作者所有!!如有侵权,请联系我们,我们第一时间处理如有问题欢迎来电咨询,专业一对一热情服务,让您用专业眼光去买房。如果您想了解更多楼盘详情,欢迎提前预约拨打中環置地中心·望雲售楼处电线 房产交易税费全解 + 100 个核心术语精简版(优化版)

  · 买方税费:契税(1%/1.5%/2%/3%,按房屋套数、面积阶梯征收);产权登记费 80 元 / 套

  · 卖方税费:个人所得税(全额 1% 或差额 20%,满 5 年且为家庭唯一住房免征);增值税及附加(5.3%,房屋持有不满 2 年征收)

  · 买方税费:契税(全额 3%);印花税(全额 0.025%);产权登记费(80 元或 550 元,按产权类型区分)

  · 卖方税费:个人所得税(差额 20%);增值税及附加(差额 5.3%);土地增值税(差额 30%-60% 或全额 5%);印花税(全额 0.025%)

  · 卖方税费:增值税及附加(差额 5.3%);土地增值税(差额 30%-60%);印花税(全额 0.025%)

  · 买方税费:契税(全额 3%);印花税(全额 0.025%);产权登记费(80 元或 550 元)

  · 卖方税费:增值税及附加(差额 5.3%);土地增值税(差额 30%-60%);印花税(全额 0.025%)

  · 买方税费:契税(全额 3%);印花税(全额 0.025%);产权登记费 80 元 / 套

  · 卖方税费:个人所得税(全额 1% 或差额 20%,满 5 年唯一住房免征);增值税及附加(5.3%,不满 2 年征收)

  · 买方税费:契税(全额 3%);印花税(全额 0.025%);产权登记费 550 元 / 套

  · 卖方税费:个人所得税(差额 20%);增值税及附加(差额 5.3%);土地增值税(差额 30%-60% 或全额 5%);印花税(全额 0.025%)

  · 买方税费:契税(全额 3%);印花税(全额 0.025%);产权登记费 80 元 / 套

  · 卖方税费:增值税及附加(差额 5.3%);土地增值税(差额 30%-60%);印花税(全额 0.025%)

  · 买方税费:契税(全额 3%);印花税(全额 0.025%);产权登记费 550 元 / 套

  · 卖方税费:增值税及附加(差额 5.3%);土地增值税(差额 30%-60%);印花税(全额 0.025%)

  · 土地所有制:中国实行 “国家所有(城市市区)+ 集体所有(农村宅基地等)” 二元制度

  · 不动产权证:整合房产证与土地证的统一权属证书,是房产合法产权的核心凭证

  连续缴存 6 个月以上(或累计 1 年),未使用过公积金贷款或已还清最高 80 万(部分城市上浮),利率约 3.25%

  征信良好(无严重逾期),收入证明≥月还款额 2 倍利率按 LPR 浮动(首套通常低 10-20 个基点)

  比现房低 5%-10%(开发商回笼资金需求)价格较高,直观可见房屋实际状况

  存在烂尾、货不对板风险(需核查五证)无烂尾风险,质量、户型、采光可实地考察

  声明:本文由入驻焦点开放平台的作者撰写,除焦点官方账号外,观点仅代表作者本人,不代表焦点立场。

  翡丽甲第(售楼处)网站 - 翡丽甲第销售中心 - 环境 - 户型 - 价格 - 地址 - 楼盘详情 - 配套 - 电话 - 交房时间 - 配套 - 电话 - 交房时间

  招商臻和璟园(售楼处)首页网站-2025招商臻和璟园销售中心(营销中心)招商臻和璟园楼盘欢迎您-小区环境-户型-价格-地址-楼盘详情-周边配套

  招商臻和璟园售楼处电话为招商蛇口与中海发展联合开发的低密改善型住宅,位于苏州工业园区核心,主打128-143㎡三房、四房,精装交付,容积率1.6,绿化率35%,预计2025年交付。

  中国铁建花语澜苑首页网站-中国铁建花语澜苑售楼处电话-中国铁建花语澜苑楼盘详情-交房时间-地址-最新房价-户型图-小区环境-周边配套-售楼处电话

  中国铁建花语澜苑售楼处电话,提供专业服务,主打低密住宅,品质住区,区域发展潜力大。

  中国铁建花语澜苑(售楼处)网站 - 中国铁建花语澜苑销售中心 - 环境 - 户型 - 价格 - 地址 - 楼盘详情 - 配套 - 电话 - 交房时间 - 配套 - 电话 - 交房时间

  五矿路劲澜悦溪云(售楼处)网站 - 五矿路劲澜悦溪云销售中心 - 环境 - 户型 - 价格 - 地址 - 楼盘详情 - 配套 - 电话 - 交房时间 - 配套 - 电话 - 交房时间

  苏州工业园区五矿路劲澜悦溪云是央企五矿与外资路劲合作开发的刚需/改善型住宅,价格22000-25000元/㎡,位于高贸新城,交通便利,配套齐全,售楼处热线。九游体育网站入口九游体育网站入口